• $1,699,900List Price
  • ActiveStatus
  • 91Number of Photos
  • 27.905207Latitude
  • 2300 Beach TrailAddress
  • Beach TrailStreet
  • 5Unit Number
  • Indian Rocks BeachTown
  • FLState
  • 33785Zip
  • PinellasCounty
  • ResidentialProperty Type
  • TB8419883MLS Number
  • 3Bedrooms
  • 3Full Bath
  • 2,320Square Feet
  • 1983Year Built
  • 0.23Acreage

Listing Tools

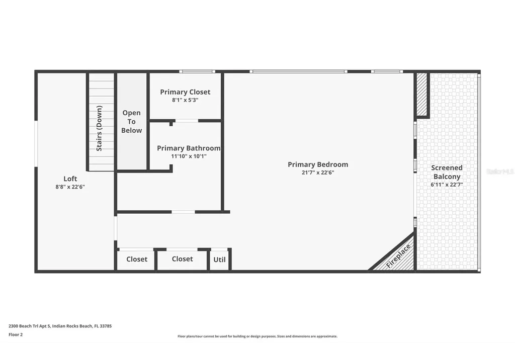
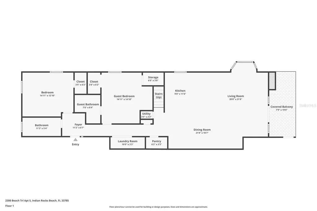
.. Updated Direct Gulf-front two-story Penthouse Condominium with Private 27' x 21' Roof Top/ Patio/ Sundeck with Gulf Views.. Private boutique six-unit complex. One-of-a-kind beautifully updated three-bedroom/ three-bath two-story penthouse condominium with 2,320 square feet of pure joy. Owners have updated with great care making every room its own sanctuary. Kitchen, floors, baths all updated and ready for immediate occupancy. One of only a few IRB - Gulf-front condominiums with a private rooftop patio. First floor enjoys a direct gulf-front great room with over 600 square feet with kitchen - Dining area and Living room all fronted by a 19 X 7.5 Gulf-Front Balcony. Both floors are complete with side Bay Windows adding additional long-range water views. First floor of penthouse also has two spacious guest bedrooms - one is En-suite with updated bath, spa tub and another next to hallway with updated Full Bath. Brazilian-engineered hardwood floors flow through the whole household beautifully complementing this beach home. The owner's primary suite takes up 75% of the second floor with a 25-by-21-foot bedroom fronted by a gulf-front 21-by-7-foot balcony plus bay windows with sweeping long-range water views. Updated 10 X 11.10 Main Bath with walk-in shower with built-in bench plus 9-foot vanity with dual Decolav Seagrass Glass Vessel Basins - one walk-in closet and three smaller 5' X 28" closets in main hallway. The entry loft stairs to access the top floor open to a finished 22.6 X 8.8 Parlor Room with seating and a 5' X 3' Wet Bar with sink, Wine Refrigerator and overhead Cabinets where you access owner's suite on one side and your Private Rooftop Patio/ Sundeck with wonderful street and water views on the other side. Just a unique sunning and entertaining area you rarely find along our waterfront. Welcome to Indian Rocks Beach. A small close-knit waterfront community with plenty of restaurants, cafes and nightlife all within a short distance. Pets OK. Two-week minimum rental makes this an ideal full-time residence or part-time beach getaway for the family with good beach rental income potential. Immediate showings available. Enjoy the tour - floorplans and photos. No water intrusion ever in entire complex".. Immediate Showings Available.

Location

Listings courtesy of StellarMLS as distributed by MLS GRID. Based on information submitted to the MLS GRID as of February 16, 2026 11:45 AM EST. All data is obtained from various sources and may not have been verified by broker or MLS GRID. Supplied Open House Information is subject to change without notice. All information should be independently reviewed and verified for accuracy. Properties may or may not be listed by the office/agent presenting the information. IDX information is provided exclusively for consumers’ personal noncommercial use and may not be used for any purpose other than to identify prospective properties consumers may be interested in purchasing. The data is deemed reliable but is not guaranteed by MLS GRID. The use of the MLS GRID Data may be subject to an end user license agreement.

Hi there! How can we help you?

Contact us using the form below or give us a call.

Send Us A Message:

By submitting this form I agree to receive marketing and customer service calls and text messages from Michael Saunders & Company. To opt out, you can reply 'stop' at any time or click the unsubscribe link in the emails. Consent is not a condition of purchase. Msg/data rates may apply. Msg frequency varies. Privacy Policy.

Do not fill in this field:

This site is protected by reCAPTCHA and the Google Privacy Policy and Terms of Service apply.

Hi there! How can we help you?

Contact us using the form below or give us a call.

Send Us A Message:

Do not fill in this field:

This site is protected by reCAPTCHA and the Google Privacy Policy and Terms of Service apply.

Hi there! How can we help you?

Contact us using the form below or give us a call.

Send Us A Message:

Do not fill in this field:

This site is protected by reCAPTCHA and the Google Privacy Policy and Terms of Service apply.

Do not fill in this field:

This site is protected by reCAPTCHA and the Google Privacy Policy and Terms of Service apply.

Do not fill in this field:

This site is protected by reCAPTCHA and the Google Privacy Policy and Terms of Service apply.

Do not fill in this field:

This site is protected by reCAPTCHA and the Google Privacy Policy and Terms of Service apply.

$

Do not fill in this field:

This site is protected by reCAPTCHA and the Google Privacy Policy and Terms of Service apply.